Our Process
At our first meeting we discuss your landscape design goals, and see if we’re a good fit to work together. We learn how you will use your outdoor spaces, how you’d like to feel in those spaces, your personal style and lifestyle, and your maintenance abilities and desires.
Next Samara will prepare a proposal for landscape design services which states your objectives and a strategy for creating a unique, site-specific design that best represents your vision and budget.
Once you accept the proposal, we will begin creating an accurate base map, using AutoCAD. To create the base, a survey, completed by a certified surveyor, is often required, especially for more complex sites.
We also conduct our own site analysis, gathering information about building features, doors, windows, existing vegetation, sidewalks, driveways, and other site details. Our analysis will also address the potentials and issues presented by grades and drainage, views, sun and shade aspects, and soils. We’ll photograph the site, and this information will be compiled to create your unique base map.
With the base printed out to scale, we overlay tracing paper and hand-sketch loose concepts. Eventually we firm up the sketches to create a unique conceptual design that creatively weaves together all the pieces of your landscape.

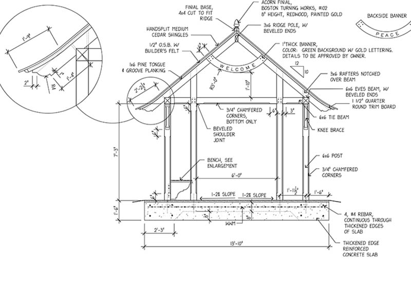
Our construction drawings provide contractors with design details for building garden structures. 
This photo shows the completed structure, which serves as the entryway for a public garden.
You see the sketch at a collaborative session where we explore the concept and its features. We’ll walk through the plans and visualize outdoor spaces and features, explaining how the spaces might feel and look with potential retaining walls, patios, and a plant palette. We won’t yet focus on specific details, but rather generalized forms, and spatial qualities; how the spaces feel and function together. We will begin to discuss your plant likes, dislikes, and maintenance.
Following our meeting, you can take time to walk through the plans on your own, imagining the spaces of your landscape with the plan in hand. You’ll have extra copies of plans to write notes to exchange with us and ask questions as we hone the concept based on our collaboration.
Once we agree on the features of the conceptual design, we move into the detailed phase of construction drawings. These plans are drawn using AutoCAD and contain all the details for a contractor to build your landscape. They can include grading plans, hardscape plans, planting plans, and any details for custom features. A set of either landscape notes or specifications will also be created to further direct contractors, ensuring quality of the built project. We will also share our wealth of knowledge on how to care for your landscape elements when we meet to walk through the details and answer any questions.
These final construction drawings are now ready to be submitted to contractors for their costs, or bids, as you prefer. We’re available to help with contractor selection if you like. Once you settle on a contractor we are available for on-site project management to further ensure quality.
The Samara Experience
- We listen, we respect the natural world, we design a landscape for you
- You get personalized service through the design process with continued oversight through construction
- Your wishes and concerns are paramount as we design and craft unique outdoor spaces, one at a time
- We approach your project with a fresh outlook and imagination
- Each design is created to properly balance function with aesthetics
- We consider the dynamics of future landscape maintenance early in the design and budget process
- We share both the timeline and the expected lifetime of the project
- You benefit from our years of experience in the fields of horticulture and landscape architecture
To discuss your landscape design project, please complete our contact form and we’ll set up a time to meet.
